新闻动态

NEWS DYNAMIC

公司新闻 行业新闻 设计分享

31

May

2021

深圳金领假日公寓项目图

作者:中建建设      浏览:724次

深圳金领假日公寓 见证河套片区发展新机遇

在有限用地内提升城市住区空间品质

 

 

深圳金领假日公寓位于福田南路和滨河大道交汇处,地处土地资源稀缺的皇岗口岸片区。项目总用地面积约 12600 ㎡,总建筑面积约 182600 ㎡,由 3 座超高层塔楼及一层裙房(局部三层)、四层地下室、一层半地下室组成。如何在有限用地内平衡容积率和日照、视野、城市友好性、居住价值,提升城市居住品质,是金领假日公寓核心设计难点。项目经过 7 年的建设周期,于 2019 年 12 月顺利落成竣工。

 

 

皇岗口岸片区南临深圳河,西接皇岗口岸综合枢纽和福田口岸,与合作区香港园区隔河相望,是深港交汇、深港合作的重要节点,在大湾区合作框架之下,将成为深港两地人员、资金、技术、信息交流互动合作最紧密、最核心的片区。片区内土地资源稀缺,而伴随皇岗口岸重建及深港河套片区的建设提速,该片区将迎来巨量的品质住宅需求。

 

 

 规考虑到用地狭小,深圳金领假日公寓顺应早期皇御苑社区规划肌理,在规划布局上打破长板布局,优先与南侧住区最大限度拉开间距,给城区提供喘息空间,保障区域阳光和通风,同时贴近北侧中心公园色,令住区以山脊之势同享南北两侧景色。3 栋塔楼建筑组群围绕南侧庭院呈半围合式布局,尽全力保留公庭院的完整和无干扰,形成合理楼距,将街角退让给城市,整体创造丰富的城市界面。

 

 

 3 栋塔楼实现相应旋转错位增加通透性,并充分利用北侧中央公园城市景观优势,保证开阔视野和立面展示度。所有户型实现全明格局,方正紧凑,空间设计灵动,可分可合,满足不同家庭需求。大面积观景阳台及入户花园,为住户提供景观视野开阔的品质居住体验。

 

 

塔楼外立面整齐挺拔,形体顶部、底部以及局部挑空,创造出波动的底层连续架空空间和顶部动感天际线。针对高容高密住区,设计团队充分利用小户型的凹槽设置空调及管线,通过立面线条控制凸窗高度,利用构造遮挡,避免室外挂机、管线外露,保证建筑立面整体性。

 

 

在此项目中,设计团队希望可以追求更多绿色、亲近自然的空间。整个场地沿道路形成大大小小不同的口袋公园,提升场地活力与城市友好性。项目打造 8000 ㎡的园林景观,包含山花园、海花园、村花园及绿地广场,还融入“风、花、雪、月”四大元素,打造特色化景观花园。围绕 3 栋塔楼外围形成外环消防车道,通过立体化的消防“绿环”将社区串联,整体打造成漫步观景平台,为社区居民营造舒适的生活氛围。

 

 

 设计团队充分考虑了配套商业与住宅的分隔,将不利影响降到最低。结合原有商业界面,项目整体利用地形优势抬升庭院标高,减少地库开挖成本,形成生态阳光车库。庭院之上是比较私秘的社区庭院,庭院之下设置配套与商业。之上的屋顶花园分别设计不同类型园林景观,营造富有层次感的立体园景,增加空间丰富性和便利性的同时,也隔绝了餐饮等业态对住宅隐私、生活空间的干扰。

 

 尽管高密度城市挤压了住区空间,但住宅设计本质还是需要从中找回家的温度,让人们能在此安居下来,与城市友好成长。住宅设计的目标不仅仅是空间本身,而是从居住者和人的尺度考虑,强调以归家体验为核心,串联起整个社区,最终接入居住空间,实现放松和归属。这也正是在深圳金领假日公寓项目中所希望实现的一种平衡。

 

总平面图

 

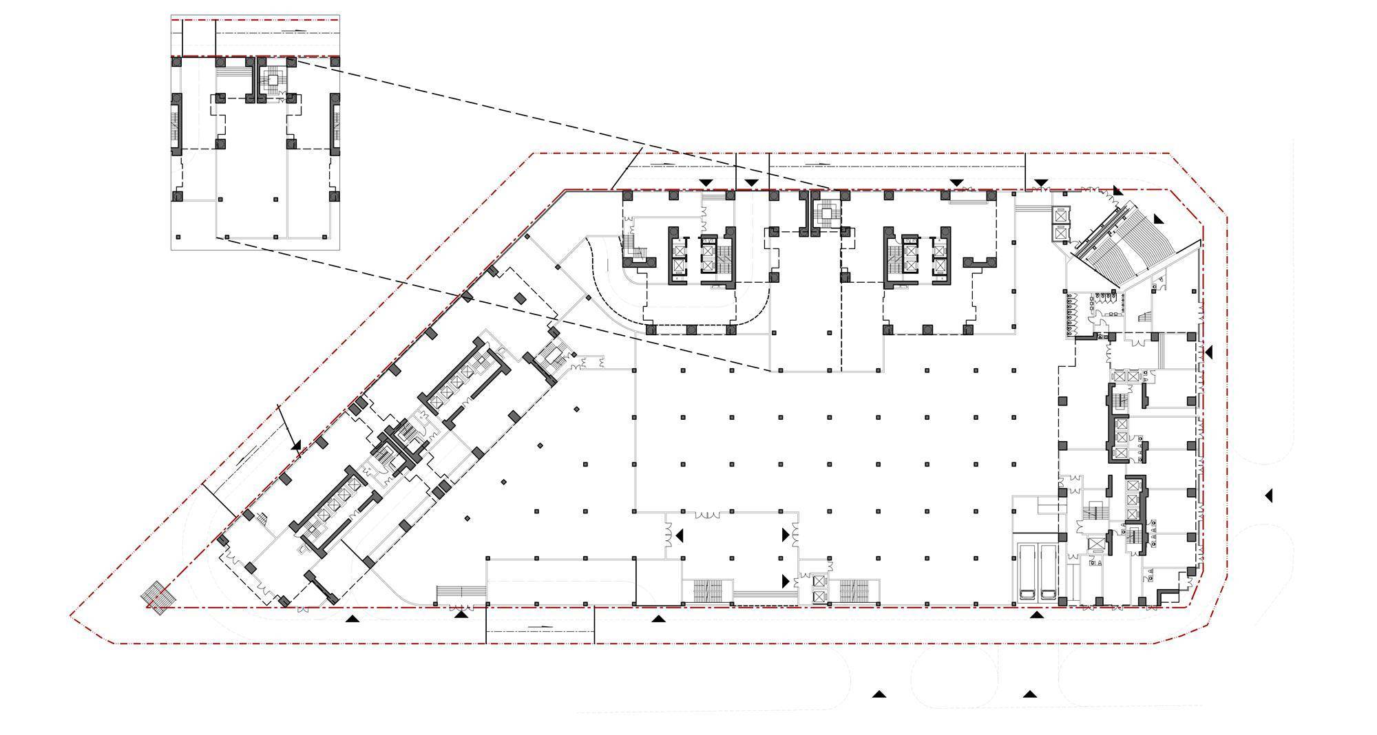
一层平面图

 

二层平面图

 

沿街北立面

 

推荐阅读

内江市东兴区郭北养老服务中心建设项目方案设计

今日南方小年——三桥设计愿您岁岁平安

今日腊八!

新起点 新征程 | 三桥设计院祝大家新年快乐

三桥入住福建省传图系统啦

冬至来了,可以数着日子盼春天啦